Biệt thự đơn lập Vinhomes Cần Giờ là sản phẩm cao cấp hàng đầu trong đại đô thị sinh thái biển Vinhomes Cần Giờ. Mỗi căn biệt thự sở hữu vị trí chiến lược, kiến trúc tinh xảo, mật độ xây dựng thấp và bao quanh bởi biển, hồ nước mặn cùng công viên xanh mát. Với số lượng hạn chế, loại hình này mang đến không gian sống riêng tư và đẳng cấp, đây sẽ là kênh đầu tư giá trị, hứa hẹn khả năng tăng giá vượt trội theo tiến trình phát triển hạ tầng.
Tổng quan biệt thự đơn lập Vinhomes Cần Giờ
Biệt thự đơn lập tại Vinhomes Green Paradise là dòng sản phẩm cao cấp nổi bật trong toàn bộ khu đô thị sinh thái biển, thu hút sự quan tâm của các nhà đầu tư và cư dân thượng lưu. Với quy mô rộng lớn cùng hệ thống tiện ích đồng bộ, dự án mang đến chuẩn mực sống hiện đại, mỗi cư dân sẽ được tận hưởng trọn vẹn không gian nghỉ dưỡng và giá trị sống đích thực.
Thông tin chi tiết về các phân khu biệt thự đơn lập Vinhomes Cần Giờ:
- Phân khu Vịnh Tiên: Khoảng 800 căn, nằm trên tiểu khu biệt lập, tiếp giáp Biển hồ nước mặn, diện tích đất 200 – 250 m².
- Phân khu Vịnh Ngọc: Khoảng 700 căn, biệt lập trên đảo, tiếp giáp Biển hồ nước mặn, một số vị trí ven biển, diện tích đất 200 – 250 m².
- Phân khu Mũi Danh Vọng: Khoảng 1000 căn, thuộc bán đảo giáp biển hồ nước mặn, một số căn ven biển và gần bến du thuyền.

Phối cảnh biệt thự đơn lập Vinhomes Cần Giờ
Đặc điểm biệt thự đơn lập Vinhomes Cần Giờ
Đặc điểm chung của biệt thự đơn lập tại Vinhomes Cần Giờ là sản phẩm bất động sản cao cấp, kết hợp không gian sống sang trọng, riêng tư và trải nghiệm nghỉ dưỡng ven biển độc đáo.
Thiết kế hiện đại và tinh tế
Mỗi căn biệt thự đơn lập Vinhomes Cần Giờ được xây dựng theo phong cách hiện đại, không gian mở đón ánh sáng và gió tự nhiên. Diện tích rộng rãi, bốn mặt thoáng, đảm bảo sự riêng tư tuyệt đối. Tầm nhìn hướng ra biển, sông hoặc hồ nội khu xanh mát, mang đến cảm giác thư thái và gần gũi với thiên nhiên. Vật liệu xây dựng chất lượng cao, bố trí thông minh, màu sắc hài hòa và nội thất hiện đại tạo nên không gian sống hoàn hảo.
Không gian sống xanh và tiện ích sinh thái
Biệt thự đơn lập Vinhomes Cần Giờ được bao quanh bởi khuôn viên cây xanh rộng lớn, mật độ xây dựng thấp, công viên nội khu và vườn cảnh quan đa dạng. Cư dân có thể tận hưởng không khí trong lành như dạo bộ, tập thể thao hoặc thư giãn bên hồ nước yên bình. Hệ thống tiện ích sinh thái như đường dạo bộ ven sông, khu vui chơi trẻ em, khu thể thao đa năng, vườn BBQ… đáp ứng đầy đủ nhu cầu giải trí và rèn luyện sức khỏe của mọi thành viên trong gia đình.

Không gian sống xanh mát
Biệt thự đơn lập Vinhomes Cần Giờ sinh lời bền vững
Vị trí ven biển đắc địa, tiềm năng du lịch và hạ tầng phát triển mạnh mẽ giúp biệt thự đơn lập tại Vinhomes Cần Giờ trở thành kênh đầu tư hấp dẫn. Quy hoạch đồng bộ, quản lý chuyên nghiệp và tiện ích đẳng cấp thu hút người mua để ở hoặc khai thác cho thuê để tạo nguồn thu ổn định. Sự kết hợp giữa chất lượng xây dựng, tiện ích hiện đại và độ uy tín của Vingroup đã mang đến giá trị bền vững và khả năng sinh lời cao trong dài hạn.
Quý khách cần tìm hiểu thêm về sản phẩm shophouse Vinhomes Cần Giờ, đọc ngay bài viết: Shophouse Vinhomes Cần Giờ.
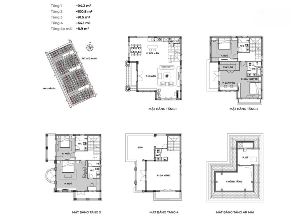
Mặt bằng thiết kế biệt thự đơn lập Vinhomes Cần Giờ
Biệt thự đơn lập tại Vinhomes Green Paradise là dòng sản phẩm cao cấp, dành cho khách hàng ưu tiên không gian sống riêng tư. Với số lượng giới hạn khoảng 6.000 căn trong tổng hơn 48.000 căn thấp tầng, các căn đơn lập được bố trí tại những vị trí đắc địa. Diện tích đất mỗi căn từ 200 – 300m², xây dựng tối đa 4 – 5 tầng. Thiết kế không gian mở giúp căn nhà luôn thông thoáng, tận dụng ánh sáng và gió tự nhiên.
Kiến trúc đa dạng theo từng phân khu như Đông Dương, Địa Trung Hải, Manhattan, Tân cổ điển châu Âu hay hiện đại tối giản. Tất cả đều có điểm chung là hình khối vững chắc, màu sắc trung tính sang trọng và đường nét mặt tiền thanh lịch, đáp ứng thị hiếu thẩm mỹ cao cấp.

Mặt bằng thiết kế chi tiết
Công năng biệt thự đơn lập Vinhomes Cần Giờ bố trí linh hoạt:
- Tầng trệt: Không gian sinh hoạt chính kết nối phòng khách – phòng ăn – bếp, với 3 – 4 mặt sân vườn, tạo sự riêng tư và gần gũi thiên nhiên.
- Tầng 2: Khu vực nghỉ ngơi với phòng ngủ master rộng rãi, tích hợp khu thay đồ và làm việc, ban công lớn đón gió biển và ánh sáng tự nhiên.
- Tầng 3: Có thể bố trí phòng ngủ phụ, phòng học, phòng sinh hoạt chung hoặc thư viện tùy nhu cầu.
- Tầng mái (tum): Không gian mở linh hoạt, phù hợp cho vườn cây, khu BBQ ngoài trời hoặc góc thiền, thư giãn riêng tư.
Tọa lạc tại vị trí độc tôn, nơi hội tụ biển xanh, sông nước và rừng ngập mặn hiếm có, biệt thự đơn lập Vinhomes Cần Giờ có tiềm năng tăng giá vượt trội, trở thành lựa chọn lý tưởng cho giới thượng lưu và nhà đầu tư tinh anh năm 2025. Với mức giá khởi điểm hợp lý so với thị trường, pháp lý minh bạch và uy tín thương hiệu Vingroup, đây là cơ hội hiếm có để sở hữu tài sản tiềm năng.
THÔNG TIN LIÊN HỆ VINHOMES CẦN GIỜ
Địa chỉ: Tầng 3, Vincom Megamall, Số 159 Xa lộ Hà Nội, Thảo Điền, Quận 2, TP Hồ Chí Minh.
Hotline: 0936 338 968
Email: khachhang.vinhomesgreenparadise@gmail.com
Website: https://vinhomecangio.com.vn/







